Quartier Renoir | Portet-sur-Garonne
Le texte est extrait du site de l’observatoire de la prise en compte de l’eau dans les projets d’aménagement (Agence de l’eau Adour-Garonne & Auat).
Description
Le quartier Cézanne-Renoir à Portet-sur-Garonne fait partie du bassin versant du réseau de l’allée Jean-Jaurès. Le réseau de collecte pluvial était alors sous-dimensionné par rapport au large bassin versant qu’il collecte.
Le projet regroupe un lotissement et une trentaine d’habitations.
Dans le cadre de cette opération le SIVOM SAGe a conçu un projet visant à promouvoir une gestion intégrée et durable des eaux pluviales, avec des solutions alternatives au « tout tuyau » et réfléchi à l’échelle d’un bassin versant. Par cette approche innovante, il a fait le choix de privilégier une gestion à la source, en optant notamment pour des techniques d’infiltration naturelle, de stockage ou de rétention.
Motivations du projet
Dans le cadre d’études antérieures, plusieurs secteurs sur la commune présentaient des problématiques de type mises en charge des réseaux et débordements. Ces études concluaient de la nécessité d’entreprendre des travaux pour pallier à l’insuffisance des réseaux et aux risques d’inondations. Les solutions proposées à l’époque utilisaient des techniques lourdes et très hydrauliques (modification du paysage et projets couteux).
Suite au transfert de compétence « eaux pluviales » au SIVOM SAGe, une étude de faisabilité de mise en place de techniques alternatives a été réalisée spécifiquement sur le quartier Renoir afin d’évaluer des solutions plus naturelles, paysagères, pérennes et plus faciles en maintenance pour la collectivité. Sur le quartier Renoir, le réseau saturait rapidement et la topographie y était défavorable, à cause de points bas enclavés. Les eaux de pluie finissaient par déborder du réseau par les regards et les avaloirs, ruisselaient sur la voierie et provoquaient des inondations sur les zones les plus basses du quartier.
Données techniques
4 principes de gestion des eaux pluviales ont été retenus afin de contenir les eaux pluviales lors de fortes pluies :
- Déconnecter le quartier du réseau d’eau pluviale. Cette solution permet de protéger le quartier vis-à-vis du risque de débordement du réseau, réduire les apports pluviaux au réseau, soustraire tous les apports d’eaux pluviales extérieurs au quartier, rendre le quartier autonome dans sa gestion des eaux pluviales.
- Abandonner les avaloirs et le réseau enterré.
- Gérer et maitriser les eaux pluviales localement.
- Infiltrer les eaux pluviales in situ et en surface. Grâce aux espaces verts déjà présents sur des points bas du quartier.
Le contexte local est favorable à une gestion en zéro rejet grâce à une bonne perméabilité des sols permettant une infiltration superficielle des eaux pluviales. De plus, la nappe est suffisamment profonde pour garantir un bon fonctionnement des dispositifs d’infiltration et surtout garantir l’absence de pollution de celle-ci.
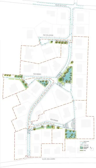
A la suite de l’analyse du contexte et de la détermination des 4 principes de gestion des eaux pluviales, 8 espaces de collectes, intégralement à ciel ouvert, ont été réalisés (3 bassins et 5 noues). Le dimensionnement et le nombre de ces espaces ont été calculés afin de contenir l’équivalent d’une pluie vingtennale, soit 505 m3 de rétention au total, pour un temps d’infiltration d’environ 10h maximum.
Les acteurs
Chiffres clés
Calendrier :
2017 - 2019
- Début des travaux : mars 2019
- Fin des travaux : juin 2019
Enveloppe financière
252 359 € HT
Part de la prise en compte de l’eau : 100 %
Financé à hauteur de 50 % par l’Agence de l’eau Grand Sud-Ouest (études et travaux) et à hauteur de 10 % par le Conseil Départemental 31.
Fiche projet financée avec le concours de :
