Bâtiment
Habitat individuel
Neuf
Bois
Liège
Ouate de cellulose
Paille
Terre crue

BÂTIBUZZ Maison bioclimatique en bois, terre et paille | Festes-et-Saint-André

Festes-et-Saint-André
|
11-Aude

Cette fiche BâtiBuzz est développée dans le cadre du Plan Bâtiment Durable Occitanie : retour d’expérience sur la construction neuve d’une maison individuelle bioclimatique avec des matériaux bio et géosourcés (bois, terre et paille) à Festes-et-Saint-André dans l’Aude (11).

En bref...

Dans le village de 200 habitants de Festes-et-Saint-André, dans l’Aude, cette maison de conception bioclimatique et passive en bois, terre et paille profite d’un superbe panorama tout en tirant profit des apports solaires et de la ventilation traversante pour assurer le confort d’hiver et d’été. En effet, son orientation associée à l’isolation en paille et à l’inertie du matériau terre permettent de maintenir une température convenable tout au long de l’année. Le volume compact rationalise les espaces de vie et réduit les surfaces de circulation.
Divers équipements complètent la conception : un poêle à bois pour le confort thermique, un capteur solaire pour l’eau chaude sanitaire et des cuves de récupération pour les eaux pluviales.

Points et chiffres clés

  • Livraison : janvier 2021
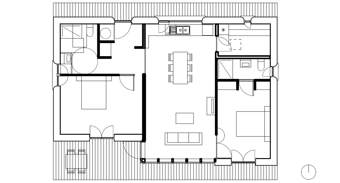
  • Surface plancher : 80 m²
  • Coût (avec viabilisation du terrain) : environ 180 k€
  • Orientation : nord-sud, avec ventilation traversante
  • Isolation : paille, liège et ouate de cellulose
  • Confort d’été : inertie et protections solaires passives

En bref

Construction neuve d’une maison
Logement individuel bioclimatique

Les acteurs

Architecte : Nina Russilly
Maitrise d’oeuvre, conseil, ingénierie : SCOP Bois-Terre-Paille , Kalegos Ingénierie
Entreprises et artisans : SCOP CO-PO , BATIPOLE EN LIMOUXIN

Chiffres clés

Calendrier

  • Livraison : juillet 2021

Caractéristique

  • Maison individuelle bioclimatique

Surface

  • Surface plancher : 80 m²

Coût

  • Coût (avec viabilisation du terrain) : environ 180 k€

En détail

Système constructif

  • Structure & murs extérieurs :
    • Murs extérieurs Ossature bois avec isolation paille 36 cm
    • Revêtement extérieur : enduit chaux-chanvre et finition chaux-sable
    • Revêtement intérieur : enduit terre-sable blanc sur lattis diagonal en torchis, sauf pour les pièces d’eau (dans ce cas, finition carrelage sur OSB)
    • Mur de masse : ossature bois avec remplissage en torchis et enduit terre intérieur
  • Toiture & couverture :
    • Charpente industrielle (fermette) en bois Douglas du Massif central
    • Isolation par 40 cm de ouate de cellulose soufflée en combles perdus
    • Couverture en tuiles canal
  • Parois vitrées :
    • Triple vitrage bois (Uw = 0,8 W/m².K)
    • 77% de la surface des ouvertures en façade sud
  • Planchers bas :
    • Dalle béton flottante de 12 cm sur hérisson (graviers 20/40)
    • Isolée en périphérie par 15 cm de liège en panneaux

Équipements

  • Chauffage :
    • Apports solaires principalement
    • Appoint poêle à bûches (P = 5 kW)
  • Rafraîchissement :
    • Pas de système de rafraichissement actif
    • Surventilation naturelle grâce à des ouvertures traversantes
  • Eclairage :
    • Optimisation de la lumière naturelle
    • Eclairages domestiques LED
  • Eau chaude sanitaire :
    • Capteur de 4,7 m² orienté sud et incliné à 45°C avec canalisations enterrées et isolées
    • Ballon avec un appoint électrique : ballon 250 L, P = 1,8 kW
  • Ventilation : VMC hygroréglable de type A
  • Eau : récupération des eaux pluviales par deux cuves d’une contenance de 1000 litres chacune
Retourner aux opérations